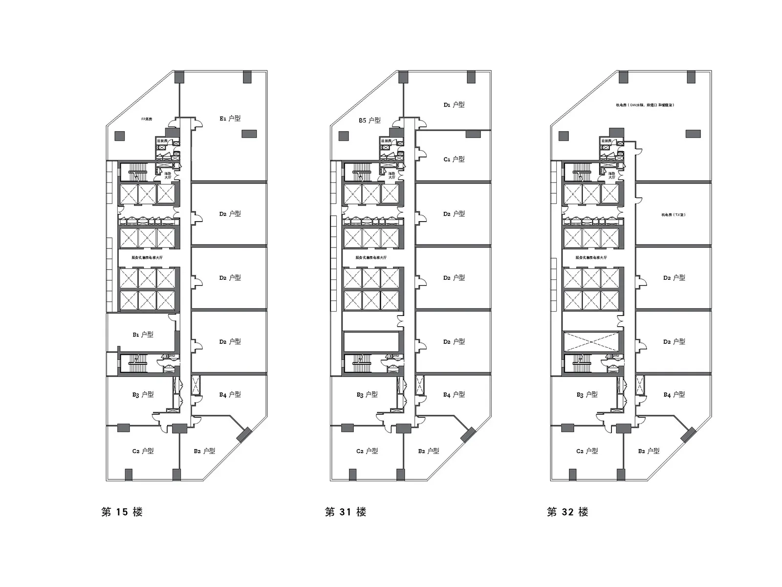
知名地标
Petronas Twin Towers、Aquaria KLCC、KL Convention Centre、KLCC Park、Bukit Bintang、Bukit Nanas Forest Reserve、KL Tower、Central Market、Chinatown, Petaling Street、Little India, Brickfields、KL Sentral。
Petronas Twin Towers、Aquaria KLCC、KL Convention Centre、KLCC Park、Bukit Bintang、Bukit Nanas Forest Reserve、KL Tower、Central Market、Chinatown, Petaling Street、Little India, Brickfields、KL Sentral。
Suria KLCC、 Isetan、Cold Storage、Avenue K、Presto、Intermark Mall、Jaya Grocer、The LINC KL、B.I.G.、Pavilion Kuala Lumpur、Mercato、Starhill Gallery、Lot 10、Fahrenheit 88、Bukit Bintang Plaza、Low Yat Plaza、Sungei Wang Plaza; Giant、Berjaya Times Square、Cold Storage。
SRJK (C) Chung Hwa、SRJK (C) Davidson、Universiti Kuala Lumpur、Northwood University、The University of Nottingham、Fairview International School、Sayfol International School、Raffles Design School Malaysia、Lim Kok Wing Professional Development Centre、Minas Hair Salon & Academy。
Prince Court Medical Centre、Beverly Wilshire Medical Centre、Twin Tower Medical Centre、HSC Medical Centre、Health Pathway Clinic、Mediviron UOA Aesthetic Clinic、Gleneagles Intan Medical Centre、Poliklinik Kumpulan City。














Oxley 是新加坡本土的房地产发展商,旗下的多元业务包括房地产发展丶房地产投资和发展计画管理。 Oxley在新加坡证券交易所上市,截至2024年12月31日的市值约达3亿新元。 集团现时的业务遍佈6个市场,包括新加坡丶英国丶爱尔兰丶高棉丶马来西亚及中国。 自2010年3月创立以来,Oxley集团已经推出了52个发展计画,并完成了其中的47个。 集团目前正在英国伦敦发展1个综合发展计画,在马来西亚吉隆玻发展1个综合发展计画和两个住宅发展计画,并在爱尔兰都柏林商业区发展1个规模最大的综合发展计画。